| Category | To Let |
| Type | Retail |
| Size | 3,577 sq ft / 332.3 sq m |
| Rent | £45,000 per annum |
Description
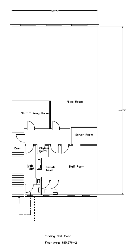
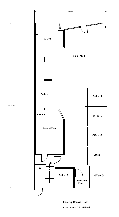
Modern two storey retail premises occupied by “Halifax” for some time. They extend over the ground and first floor providing a total of 332.20 sq m (3,577 sq ft) or thereabouts. Facilities include an ambulant toilet to the ground along with kitchen/staff room, ladies and gents’ toilets to the first floor.
The property benefits from double display windows to its frontage fitted with security roller shutters. Private car parking for up three vehicles is available to the rear.
Ground Floor 195.37 sq m (2,103 sq ft)
First Floor 136.93 sq m (1,474 sq ft)
Total 332.30 sq m (3,577 sq ft)
The property is prominently situated within the pedestrianised centre of Middleton. It is next to Betfred between Middleton Shopping Centre and Tesco Extra, with surrounding occupiers including McDonalds, Iceland, Subway and the Edgar Wood Public House.
Middleton is a town within the Borough of Rochdale with a resident population of around 45,000. It is situated on the River Irk and at the junction of the A664 and A669, six miles to the north of Manchester city centre and four miles to the west of Oldham. It is also close to junctions on the M60 Manchester Orbital motorway and M62 trans Pennine motorway.
- Two Storey Retail Premises
- Prime Town Centre Position
- Ground Floor – 195.37 sq m (2,103 sq ft)
- First Floor – 136.93 sq m (1,474 sq ft)
- Within Conservation Area
- Between Middleton Shopping Centre & Tesco Extra
- Close to Public Transport Links & Car Parks
- Private Car Parking to Rear
- VAT is Payable
- Plans for Indicative Purposes Only





