| Category | To Let |
| Type | Offices |
| Size | 7,323 sq ft / 680.3 sq m |
Description
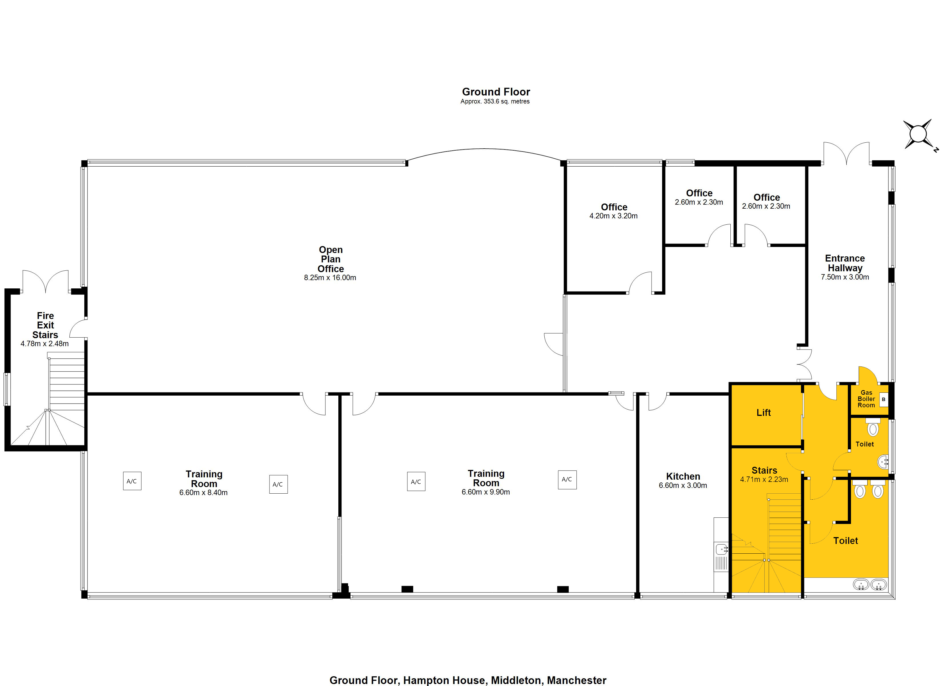
Hampton House is a modern and contemporary three storey office building with car parking facility. The available accommodation extends over the ground and first floors to around 331.10 sq m (3,564 sq ft) and 349.21 sq m (3,759 sq ft), or thereabouts, respectively. Each floor offers a mix of open plan and modular offices, meeting and training rooms, ladies and gents toilets and kitchen/staff room.The building also features a passenger lift, comfort cooling system, category II lighting and raised flooring.
Externally, there is 40 space car park, 12 spaces are allocated to each floor with 4 disabled bays allocated to the building as a whole.
Hampton House occupies a prominent position on Oldham Road (A669) in Middleton, facing the Assheton Way (A664) roundabout on the edge of the town centre, close to Middleton Arena, Warwick Court and Tesco Extra.
Junction 20 of the M60 motorway is within 1.2 miles and Junction 19 is within 1.9 miles with Junction 19 of the M62 trans Pennine motorway within around 2 miles. Network rail services are available at Mills Hill station around a mile to the east.
Middleton is a town in the Borough of Rochdale on the River Irk, 5 miles southwest of Rochdale, 4 miles west of Oldham and 5 miles Northeast of Manchester City Centre.
* Plans show for indicative purposes.
- Modern Office Premises
- Prominent 3 Storey Building
- Ground and First Floor
- Available as a Whole or Floor by Floor
- Ground Floor – 331.10 sq m (3,564 sq ft)
- First Floor – 21 sq m (3,759 sq ft)
- Passenger Lift
- Onsite Car Parking – 12 Bays Per Floor
- Close to J21, M60
- Landlord Incentives Available (subject to terms)
- Rents from £11.50 psf., pa.








